Фото Жк Березовая роща (г. Раменское)
Квартиры от
1 млн. рублей
Московская область, г. Раменское, ул. Октябрьская
ЖК «Настроение» Алма-Атинская
1
Факт сдачи I квартал 2016
Дом сдан

Квартиры в ЖК «Березовая роща (г. Раменское)»

Самые популярные планировки
Photo
1 комн. квартира
54.42
Photo
3 комн. квартира
76.092
Photo
2 комн. квартира
58.42
ЖК «Настроение»
Еще 7 вариантов квартир!
от 1 млн рублей

Выберите параметры квартиры

и получите подходящие планировки с ценами!
ЖК «Березовая роща (г. Раменское)» от застройщика "Земли Московии"

Жилой комплекс «Березовая роща» возводится в городе Раменское по проекту компании «Земли Московии». Новый комплекс сочетает в себе элементы городского и загородного жилья: на территории комплекса будут построены многоквартирные жилые дома, а также коттеджи для индивидуального проживания.

На территории ЖК «Березовая роща» запроектировано строительство 14 трехэтажных жилых домов эконом-класса, состоящих из трех или четырех секций. Все дома будут построены по блочно-монолитной технологии. Также на территории комплекса будут устроены 17 участков, предназначенных под коттеджи. Общая площадь жилой недвижимости – 53 000 кв. м.

В многоквартирных домах покупателям предлагаются:

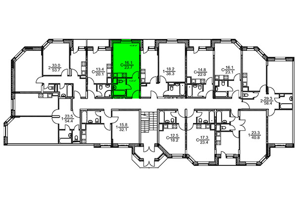
  • квартиры-студии площадью от 18,2 до 23,7 кв. м.;
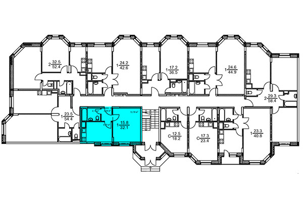
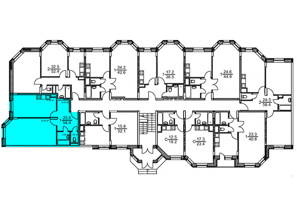
  • 1-комнатные квартиры площадью от 32,1 до 54,4 кв. м.;
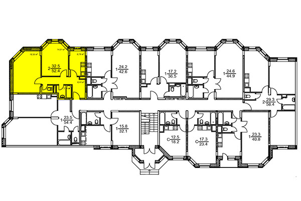
  • 2-комнатные квартиры площадью от 51,9 до 60 кв. м.;
  • 3-комнатные квартиры площадью от 76 до 87,7 кв. м.

В некоторых квартирах есть застекленный балкон, в некоторых – удобные эркеры. Все квартиры сдаются без отделки. В каждой квартире будут установлены радиаторы отопления, металлическая входная дверь и окна ПВХ. Высота потолков – 2,8 м.

Собственная инфраструктура ЖК «Березовая роща»

На территории ЖК «Березовая роща» будут построены следующие объекты инфраструктуры: детский сад, общественно-торговая территория под магазины и офисы, спортивный центр, открытая парковка на 1250 машиномест. Кроме того, планируется создание парковки в гаражном кооперативе на 95 машиномест.

Придомовая территория комплекса будут облагорожена: будут разбиты зеленые зоны, устроены детские площадки и аллеи для прогулок. Территория комплекса будет огорожена и закрыта от посторонних. Планируется устроить круглосуточное видеонаблюдение.

Окружение и транспортная инфраструктура

С двух сторон ЖК «Березовая роща» окружен зеленым массивом, что обеспечивает хорошую экологию. Также положительное влияние на экологическую обстановку оказывают роща «Березки» и речка Дергаевка.

В пешей доступности от комплекса находятся магазины, детский сад, школа, кафе и поликлиника. До центра города Раменское всего 1,7 км: жители комплекса могут воспользоваться развитой инфраструктурой города.

ЖК «Березовая роща» находится в 30 км от МКАД, если ехать по Егорьевскому или Новорязанскому шоссе. В 15 минутах ходьбы от комплекса располагается ж/д станция «Раменское», от которой можно доехать до Казанского вокзала. От станции метро «Жулебино» ходят маршрутные такси и автобусы.

Архитектура и отделка

Photo

Бесплатная консультация менеджера:


Подробно и ненавязчиво расскажем Вам о всех условиях приобретения, стоимости и типах квартир в ЖК «Березовая роща (г. Раменское)»

Ипотечный калькулятор

Запросите расчет покупки в ипотеку в 2 клика!
Бесплатная консультация специалиста по вопросам приобретения жилья в ипотеку:

Наши контакты

ТЕЛЕФОН
+7 (800) 222-79-46
АДРЕС
Московская область, г. Раменское, ул. Октябрьская
СТАНЦИЯ МЕТРО
Алма-Атинская
загрузка карты...
Наверх