Фото Жк Город
Квартиры от
3.7 млн. рублей
Дмитровское шоссе, д. 107
ЖК «Настроение» Петровско-Разумовская
1
Факт сдачи III квартал 2018
Дом сдан

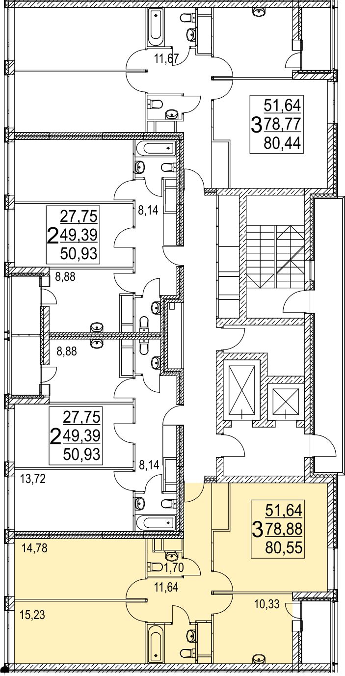
Квартиры в ЖК «Город»

Самые популярные планировки
Photo
2 комн. квартира
50.642
Photo
1 комн. квартира
33.422
Photo
2 комн. квартира
50.932
ЖК «Настроение»
Еще 333 вариантов квартир!
от 3.7 млн рублей

Выберите параметры квартиры

и получите подходящие планировки с ценами!
ЖК «Город» от застройщика "Град Инвест"

Новый перспективный жилой комплекс «Город» строится на севере Москвы на площади более 200 000 м?. Будет построено три монолитных корпуса переменной этажности. Территория застраивается по концепции «город в городе» - с возможность найти всё необходимое рядом с домом, благодаря грамотному использованию каждого квадратного метра площади. В комплексе представлен большой выбор квартир т 1 до 4 комнат площадью от 32,6–104,77 м2, высота потолков 2,8 м. Квартиры свободной планировки сдаются без отделки. Из окон квартир будет открываться вид на Дмитровский парк и Ангарские пруды. Придомовая территория будет огорожена, охраняемаблагоустроена и озеленена. В комплексе предусмотрены объекты социальной инфраструктуры - три детскиа сада, торговые и офисные помещения. Первые этажи домов отведены под кафе, службы быта, магазины, отделения банков, прачечные и химчистки.

Окружение и транспортная доступность

В пешей доступности от комплекса расположены детские сады, школа, магазины, аптеки, автозаправочные станции. Инфраструктура на хорошем уровне. В территориальном образовании Дмитровского района десять школ, шестнадцать детских садов, школа искусств, музыкальная, художественная школа, стадионы, бассейны, ледовые дворцы, спортивные комплексы, теннисный клуб.

Рядом с комплексом проходят МКАД и Дмитровское шоссе. Запланирвано открытие рядом с комплексом двух станций метропо. На границе с районом расположено две ж/д станции. В Дмитровском районе развита сеть общественного транспорта: автобусов, троллейбусов, трамваев, маршрутных такси.

Условия приобретения квартир

ЖК «Город» аккредитован в Транскапиталбанке. Ипотечная программа: кредиты на покупку жилья выдаются на срок до 25 лет по ставке 12% годовых с первоначальным взносом от 20% стоимости приобретаемой недвижимости, возможно снижение процентной ставки до 10,5% при оплате единовременной комиссии в размере 4,9% от суммы кредита.

Архитектура и отделка

Photo
Photo
Photo
Photo

Бесплатная консультация менеджера:


Подробно и ненавязчиво расскажем Вам о всех условиях приобретения, стоимости и типах квартир в ЖК «Город»

Ипотечный калькулятор

Запросите расчет покупки в ипотеку в 2 клика!
Бесплатная консультация специалиста по вопросам приобретения жилья в ипотеку:

Наши контакты

ТЕЛЕФОН
+7 (800) 222-79-46
АДРЕС
Дмитровское шоссе, д. 107
СТАНЦИЯ МЕТРО
Петровско-Разумовская
загрузка карты...
Наверх