Фото Жк IQ-квартал (СиТер)
Москва, Москва-Сити,
Пресненская набережная, д. 10, стр. 2
ЖК «Настроение» Выставочная
1
Факт сдачи IV квартал 2017
Дом сдан

Квартиры в ЖК «IQ-квартал (СиТер)»

Самые популярные планировки
Photo
Апартаменты квартира
592
Photo
Апартаменты квартира
1052
Photo
Апартаменты квартира
1132
ЖК «Настроение»
Еще 116 вариантов квартир!
от -1 млн рублей

Выберите параметры квартиры

и получите подходящие планировки с ценами!
ЖК «IQ-квартал (СиТер)» от застройщика "Галс-Девелопмент"

На территории делового центра «Москва-Сити» в Центральном административном округе, располагается многофункциональный жилой комплекс “IQ-квартал» (СиТер)”, представляющий собой три многоэтажных строения башенного типа, высотой от двадцати одного до сорока двух этажей. Все строения объединены подземной частью по которой будут перемещаться автомобили.

Жилые апартаменты разместятся в ЖК "СиТер" с 12 по 21 этаж. Здесь же запланирован 5-звездочный отель.Владельцы апартаментов получают доступ ко всему гостиничному сервису 24 часа/7 дней в неделю.

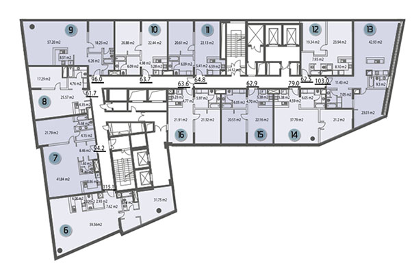
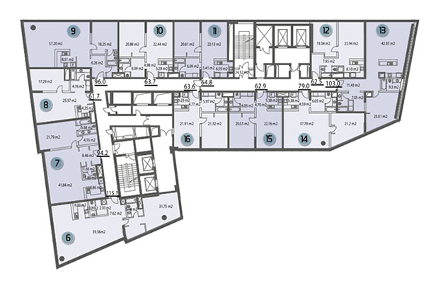
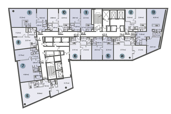
Площадь аппартаментов от 60 до 120 квадратных метров. Общее количество апартаментов: 104 шт. Общая площадь — 8 400 кв.м.В наличии 3-сторонние апартаменты, которые при желании можно объединить горизонтально. С 1 по 11 этаж расположится гостиница "Sofitel" с общим числом номеров 159.

Архитектура и отделка

Photo

Бесплатная консультация менеджера:


Подробно и ненавязчиво расскажем Вам о всех условиях приобретения, стоимости и типах квартир в ЖК «IQ-квартал (СиТер)»

Ипотечный калькулятор

Запросите расчет покупки в ипотеку в 2 клика!
Бесплатная консультация специалиста по вопросам приобретения жилья в ипотеку:

Наши контакты

ТЕЛЕФОН
+7 (800) 222-79-46
АДРЕС
Москва, Москва-Сити, Пресненская набережная, д. 10, стр. 2
СТАНЦИИ МЕТРО
Выставочная ,Международная ,Деловой центр
загрузка карты...
Наверх