Фото Жк Усадьба Суханово
Квартиры от
3.2 млн. рублей
Московская область, пос. Булатниковское,
д. Суханово
ЖК «Настроение» Улица Скобелевская
1
Факт сдачи IV квартал 2016
Дом сдан

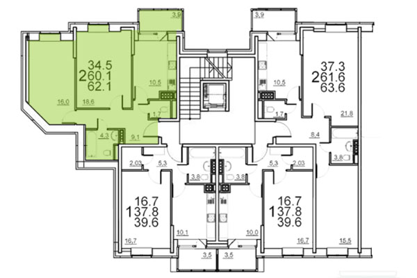
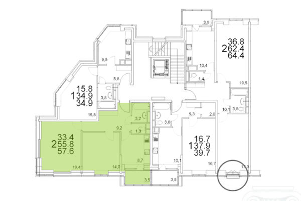
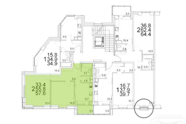
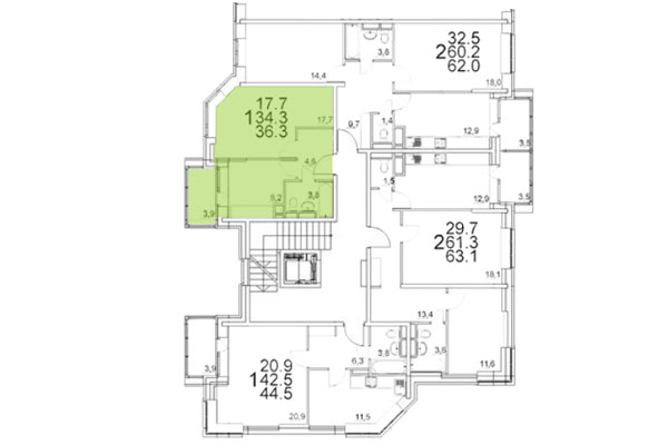
Квартиры в ЖК «Усадьба Суханово»

Самые популярные планировки
Photo
2 комн. квартира
672
Photo
2 комн. квартира
64.72
Photo
1 комн. квартира
42.32
ЖК «Настроение»
Еще 856 вариантов квартир!
от 3.2 млн рублей

Выберите параметры квартиры

и получите подходящие планировки с ценами!
ЖК «Усадьба Суханово» от застройщика "Декор"

Жилой комплекс «Усадьба Суханово» - новый микрорайон, который возводится в деревне Суханово, в Ленинском районе Московской области. Новый ЖК строится неподалеку от имения князей Волконских: комплекс удачно сочетает в себе современный уровень комфорта с отсылками к историческим событиям.

ЖК «Усадьба Суханово» возводится в рамках развития территории ДО Суханово. Застройщиком проектам выступает компания «Декор». Строительство нового микрорайона будет осуществляться в три очереди. Первая очередь предполагает возведение шести 5-этажных кирпично-монолитных корпусов.

Покупатели могут приобрести 1, 2 и 3-комнатные квартиры площадью от 37,2 до 85,7 кв. м. Высота потолков – 2,72 м. В каждой квартире устроен остекленный балкон. Многие квартиры оснащены эркерами; многие квартиры имеют двустороннюю планировку (распашонки). Квартиры передаются покупателям без отделки. Строительство межкомнатных перегородок не предусмотрено.

Несмотря на малоэтажность жилых корпусов, в каждой секции будет устроен пассажирский лифт.

Собственная инфраструктура ЖК «Усадьба Суханово»

На первых этажах жилых корпусов разместятся офисные помещения. На территории ЖК «Усадьба Суханово» предполагается строительство детского сада, школы и административно-офисного здания. Для удобства жителей микрорайона будет создан многоуровневый наземный паркинг.

На придомовой территории комплекса будут проведены работы по благоустройству. Для маленьких жителей комплекса здесь будут устроены детские площадки, для любителей спорта – спортивные площадки. Кроме того, застройщик выполнит работы по озеленению и организует зоны отдыха. Для гостей комплекса будет создана специальная парковка.

Окружение и транспортная доступность

ЖК «Усадьба Суханово» возводится в деревне Суханово, расположенной между Новокаширским и Симферопольским шоссе. Неподалеку от комплекса проходит Расторгуевское шоссе. Расстояние от нового микрорайона до МКАД составляет около 5 км. Добраться до комплекса можно на маршрутных такси и автобусах, которые ходят от станций метро «Бульвар Дмитрия Донского» и «Домодедовская».

Несмотря на близость нескольких крупных трасс, транспортная доступность ЖК «Усадьба Суханово» оставляет желать лучшего. Неподалеку от комплекса нет ни одной ж/д станции. Ближайшая ж/д станция «Расторгуево» находится в городе Видное. Расстояние от комплекса до города Видное составляет примерно 2 км.

Экология района характеризуется как хорошая. Неподалеку от ЖК протекает река Гвоздянка и находится большой лесной массив. Часть территории комплекса граничит с Большим Сухановским прудом.

В пешей доступности от ЖК «Усадьба Суханово» находятся несколько магазинов, а также ЖК «Суханово парк». Ближайшие школа и больница находятся на расстоянии 1 км от ЖК. Жителям комплекса придется пользоваться инфраструктурой города Видное.

Архитектура и отделка

Photo
Photo
Photo

Бесплатная консультация менеджера:


Подробно и ненавязчиво расскажем Вам о всех условиях приобретения, стоимости и типах квартир в ЖК «Усадьба Суханово»

Ипотечный калькулятор

Запросите расчет покупки в ипотеку в 2 клика!
Бесплатная консультация специалиста по вопросам приобретения жилья в ипотеку:

Наши контакты

ТЕЛЕФОН
+7 (800) 222-79-46
АДРЕС
Московская область, пос. Булатниковское, д. Суханово
СТАНЦИЯ МЕТРО
Улица Скобелевская
загрузка карты...
Наверх